خط تكسير حجر النهر120طن بساعى في الفلبين

Performance

العائد: 120-200 طن بساعة التطبيقات: البناء الكلي

وصف المشروع:

المصدر: نهر رابيدز

العتاد: نهر ستون

الحد الأقصى للتغذية: 600 مم

صلابة موه: 4-5

العائد: 120 طن / ساعة

ساعات العمل: 10 ساعات / يوم

التطبيق: البناء الكلي

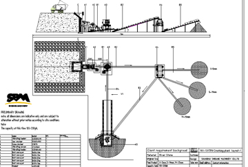
تكوين المعدات:

وحدة التغذية الاهتزازية ZSW ، الكسارة الفكية سلسلة PE ، الكسارة المخروطية سلسلة CS ، شاشة الاهتزاز ، غسالة الرمال سلسلة XSD

صور في الموقع

 

Top Rated مشروع

leave a message